Engelhorn
GmbH & Co KG

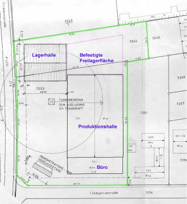
Lageplan

Lageplan Ecke1. Industriestraße 1+3, Friedensstraße

 

[Home] [Allgemeines] [Standort] [Bilder] [Bürogebäude] [Produktionshalle] [Lagerhalle] [Kontakt]